LECH NIERUCHOMOŚCI 01-161 WARSZAWA ULICA OBOZOWA 20 LOKAL 231
Kursy walut NBP: USD 3,98 | EUR 4,32 | CHF 4,53 |
Strona główna | Mapa serwisu | Zgłoś ofertę | Polityka plików cookies| Kontakt
Wyszukiwarka
Numer oferty
Miejscowość lub dzielnica
Ulica
Cena
Powierzchnia
Liczba pokoi
 
Oferty specjalne
zgloś ofertę
kontakt
Szczegóły oferty
Rodzaj oferty
mieszkanie ( sprzedaż )
Numer
55405/4508/OMS
Miasto
WARSZAWA, BIAŁOŁĘKA
Ulica
Aluzyjna
Cena
610 000 PLN kalkulator
Cena za mkw
14 980,35 PLN mkw
Powierzchnia
40.72 m2
Liczba pokoi
2
Piętro
2
Liczba pięter
3
Rodzaj kuchni
aneks
Rok budowy
2015
Balkon
TAK
Winda
TAK
Opis
Mieszkanie 2-pokojowe usytuowane na 2 piętrze w 3-piętrowym bloku z windą z 2015 roku zlokalizowane -Warszawa, Białołęka, ul. Aluzyjna.
Budynek ogrodzony, posiada monitoring wizyjny, nad wszystkim czuwa Wspólnota.
Na patio znajduje się plac zabaw, piaskownica, ławki. Okna wychodzą na patio, nie na ulicę .
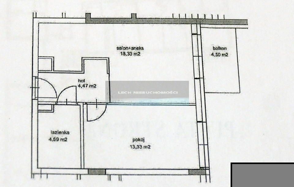
Na powierzchnię mieszkania składa się
-salon z aneksem kuchennym-18,33m2
-sypialnia-13,33m2
- łazienka z wanną i wc 4,59m2
- przedpokój 4,47m2.
Dodatkowo balkon-4,5m2.

Mieszkanie położone w atrakcyjnej lokalizacji, dobrze skomunikowane.
W okolicy (ok 1 km) tereny zielone - z jednej strony lasy (Choszczówka), z drugiej Wisła.
Sklepy w pobliżu pod blokiem Żabka, Biedronka, Rossmann, Pepco oraz sklep zoologiczny. Niedaleko znajdują się także Lidl, druga Biedronka i Kaufland.
W bezpośredniej okolicy co najmniej 2 przedszkola, żłobek i szkoła podstawowa.

Istnieje możliwość zakupu miejsca parkingowego w garażu podziemnym-płatne dodatkowo 50 tys.

Czynsz ok 650 zł.



Sobota i niedziela dyżur w biurze w godzinach 830 - 2100. W razie jakichkolwiek pytań proszę dzwonić 795 327 829, wysłać SMS lub wysłać zapytanie na adres e-mail lech@lechnieruchomosci.pl, oddzwonimy.
Treść ogłoszenia nie stanowi oferty w rozumieniu Kodeksu Cywilnego
Jesteś zainteresowany?
Agent prowadzący
Renata Snarska
Nr licencji pośrednika odpowiedzialnego zawodowo
5860
Telefon
795-327-829
E-mail
lech@lechnieruchomosci.pl

LECH NIERUCHOMOŚCI
Obozowa 20 lokal 231
01-161 Warszawa
tel.: 795 327 829
email: lech@lechnieruchomosci.pl
fax: 22 258-12-31
Wyślij zapytanie
Imię i Nazwisko 
Telefon 
E-mail 
Treść zapytania 

Wyrażam zgodę na przetwarzanie moich danych osobowych przez firmę LECH NIERUCHOMOŚCI dla celów związanych z działalnością pośrednictwa w obrocie nieruchomościami, jednocześnie potwierdzam, iż zostałem poinformowany o tym, iż będę posiadać dostęp do treści swoich danych do ich edycji lub usunięcia.
Wyślij ofertę e-mailem
 

© 2025 LECH NIERUCHOMOŚCI. Wszystkie prawa zastrzeżone.