LECH NIERUCHOMOŚCI 01-161 WARSZAWA ULICA OBOZOWA 20 LOKAL 231
Kursy walut NBP: USD 3,98 | EUR 4,32 | CHF 4,53 |
Strona główna | Mapa serwisu | Zgłoś ofertę | Polityka plików cookies| Kontakt
Wyszukiwarka
Numer oferty
Miejscowość lub dzielnica
Ulica
Cena
Powierzchnia
Liczba pokoi
 
Oferty specjalne
zgloś ofertę
kontakt
Szczegóły oferty
Rodzaj oferty
mieszkanie ( sprzedaż )
Numer
53375/4508/OMS
Miasto
WARSZAWA, MOKOTÓW
Ulica
Jadźwingów
Cena
500 000 PLN kalkulator
Cena za mkw
15 625 PLN mkw
Powierzchnia
32.00 m2
Liczba pokoi
1
Liczba pięter
2
Stan
do kapitalnego remontu
Rok budowy
1962
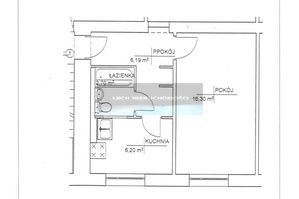
Opis
1-pokojowe mieszkanie/ z możliwością wydzielenia 2 pokoi/ usytuowane na parterze w niskim 2 piętrowym budynku z 1962 roku zlokalizowane na Mokotowie przy ul. Jadźwingów.
Budynek został poddany termomodernizacji w 2017 r. W ramach termomodernizacji wymienione zostały okna na klatce schodowej i w piwnicy oraz drzwi wejściowe do budynku.

Mieszkanie o powierzchni 32m2 składa się z
- pokoju,
- oddzielnej kuchni,
- łazienki,
- przedpokoju.
Okna na północny-wschód.
Stan do generalnego remontu
Dodatkowo piwnica.
Czynsz administracyjny wynosi 550zł.

Dogodna lokalizacja - z doskonałym dostępem do infrastruktury miejskiej. Zaledwie 5 minut spacerem dzieli ją od przystanków autobusowych i tramwajowych, a w ciągu 10 minut można dotrzeć do stacji metra Służew lub Wilanowska, co zapewnia szybki i wygodny dojazd do centrum miasta oraz innych dzielnic Warszawy.

W najbliższej okolicy znajdują się liczne sklepy, szkoły, żłobki, przychodnie oraz inne udogodnienia codziennego życia. Bliskość Galerii Mokotów oraz tzw. "Mordoru" czyni to miejsce szczególnie atrakcyjnym dla osób pracujących w zagłębiu biurowym Mokotowa.

Dodatkowym atutem są tereny zielone, m.in. Park Dolinka Służewiecka, które sprzyjają aktywnemu wypoczynkowi i spacerom z dala od zgiełku miasta.

Zapraszam na prezentację nieruchomości.





Sobota i niedziela dyżur w biurze w godzinach 830 - 2100. W razie jakichkolwiek pytań proszę dzwonić 795 327 829, wysłać SMS lub wysłać zapytanie na adres e-mail lech@lechnieruchomosci.pl, oddzwonimy.
Treść ogłoszenia nie stanowi oferty w rozumieniu Kodeksu Cywilnego
Jesteś zainteresowany?
Agent prowadzący
Renata Snarska
Nr licencji pośrednika odpowiedzialnego zawodowo
5860
Telefon
795-327-829
E-mail
lech@lechnieruchomosci.pl

LECH NIERUCHOMOŚCI
Obozowa 20 lokal 231
01-161 Warszawa
tel.: 795 327 829
email: lech@lechnieruchomosci.pl
fax: 22 258-12-31
Wyślij zapytanie
Imię i Nazwisko 
Telefon 
E-mail 
Treść zapytania 

Wyrażam zgodę na przetwarzanie moich danych osobowych przez firmę LECH NIERUCHOMOŚCI dla celów związanych z działalnością pośrednictwa w obrocie nieruchomościami, jednocześnie potwierdzam, iż zostałem poinformowany o tym, iż będę posiadać dostęp do treści swoich danych do ich edycji lub usunięcia.
Wyślij ofertę e-mailem
 

© 2025 LECH NIERUCHOMOŚCI. Wszystkie prawa zastrzeżone.